|  | 
                                          
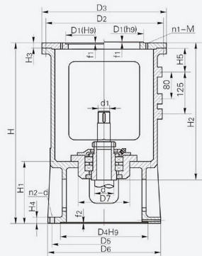
                                            |    本系列機架是化工行業新標準機架,是為攪拌傳動裝置(HG21563-95)配套的機架。XD型為單支點機架,減速機出軸用DF型聯軸器與攪拌軸聯接,XS型為雙支點機架,減速機出軸用HL型聯軸器聯接,兩支點間用DF型聯軸器聯接。機架分A型(軸封采用2001、2003、2004、2006型機械密封)或B型(軸封(2002、2005、2007型機械密封或506、516、606、616型填料箱)。機架輸出端接口可與第九部分(二節)所列的安裝底蓋及釜口法蘭聯接。
     本系列機架通用性強,由于選用型DF聯軸器及安裝底蓋的擱軸裝置,所以在不拆除減速機和機架的條件下,在機架的側面窗口中就可以拆出帶短節聯軸器、軸承室及機械密封或填料箱。  | 
                                          
                                            |  | 
                                          
                                            |  | 
                                          
                                            |  | 
                                          
                                            | 型號標定方法及示例: | 
                                          
                                            |  | 
                                          
                                            | 
                                              
                                                |  | 
                                                  
                                                    | 減速機類型  |  
                                                    | 減速機輸出軸徑d0 |  
                                                    | 機架型式(A型、B型)。  |  
                                                    | 傳動軸軸徑d |  
                                                    | 機架型號  |  |  | 
                                          
                                            |  | 
                                          
                                            | XD型單支點機架 | 
                                          
                                            |  | 
                                          
                                            | 主要參數及尺寸(公稱直徑200、250、300) | 
                                          
                                            |  | 
                                          
                                            | 
                                              
                                                | 機架型號
 | 機架公稱
 直徑
 | 傳動軸軸徑d
 | 傳動軸上端軸徑d1
 | 減速機輸出軸
 徑d0
 | 輸入端接
 口
 | 輸出端接口  | 外形及其它尺寸  | 軸承型號  | 重量(kg)  |  
                                                | D4H9
 | D5 | D6 | n2-d | f2 | A型  | B型  | H3 | H4 | H5 | D7H8/f7
 | A型  | B型  |  
                                                | H | H1 | H2 | H | H1 | H2 |  
                                                | XD1 | 200 | 30 | 20 | 12 | 見表
 | 245 | 295 | 340 | 8-22 | 6 | 575 | 220 | 415 | 730 | 295 | 495 | 17 | 24 | 85 | 180 | 46209 | 57 | 61 |  
                                                | 14 |  
                                                | 18 |  
                                                | 40 | 30 | 25 | 415 | 495 | 46209 | 57 | 60 |  
                                                | 30 |  
                                                | XD2 | 250 | 50 | 40 | 30 | 290 | 350 | 395 | 12-22 | 6 | 750 | 268 | 556 | 995 | 388 | 681 | 20 | 30 | 100 | 245 | 46214 | 106 | 116 |  
                                                | 35 |  
                                                | 40 |  
                                                | 60 | 45 | 35 | 556 | 681 | 46214 | 107 | 117 |  
                                                | 40 |  
                                                | 45 |  
                                                | 70 | 55 | 45 | 565 | 690 | 46217 | 104 | 114 |  
                                                | 50 |  
                                                | 55 |  
                                                | XD3 | 300 | 60 | 45 | 35 | 320 | 400 | 445 | 12-22 | 6 | 795 | 279 | 595 | 1040 | 399 | 720 | 20 | 30 | 100 | 280 | 46216 | 153 | 164 |  
                                                | 40 |  
                                                | 45 |  
                                                | 70 | 55 | 45 | 595 | 720 | 46216 | 150 | 161 |  
                                                | 50 |  
                                                | 55 |  
                                                | 80 | 65 | 55 | 606 | 731 | 46218 | 149 | 160 |  
                                                | 60 |  
                                                | 65 |  | 
                                          
                                            |  | 
                                          
                                            | 
                                              
                                                | 機架型號
 | 機架公稱
 直徑
 | 傳動軸軸徑d
 | 傳動軸上端軸徑d1
 | 傳動軸端尺寸  |  
                                                | M0 | d2(h9) | d3 | d4 | h1 | h2 | h3 | h4 | L1 | L0 | L2 | b1 | b0 | b2 | t1 | t0 | t2 |  
                                                | XD1 | 200 | 30 | 20k6 | M25×1.5 | 25 | 22.8 | 22 | 97 | 3 | 15 | 48 | 40 | 23 | 30 | 6 | 5 | 5 | 16.5 | 21 | 22 |  
                                                | 40 | 30k6 | M35×1.5 | 35 | 32.8 | 32 | 97 | 3 | 15 | 48 | 40 | 24 | 30 | 8 | 6 | 6 | 26 | 31 | 31.5 |  
                                                | XD2 | 250 | 50 | 40k6 | M45×1.5 | 45 | 42.8 | 42 | 105 | 3 | 15 | 58 | 50 | 24 | 30 | 12 | 6 | 6 | 35 | 41 | 41.5 |  
                                                | 60 | 45k6 | M55×2 | 55 | 52 | 50 | 115 | 4 | 18 | 68 | 60 | 30 | 40 | 14 | 8 | 8 | 39.5 | 51 | 51 |  
                                                | 70 | 55m6 | M65×2 | 65 | 62 | 60 | 125 | 4 | 18 | 83 | 75 | 30 | 40 | 16 | 8 | 8 | 49 | 61 | 61 |  
                                                | XD3 | 300 | 60 | 45k6 | M55×2 | 55 | 52 | 50 | 125 | 4 | 18 | 68 | 60 | 30 | 40 | 14 | 8 | 8 | 39.5 | 51 | 51 |  
                                                | 70 | 55m6 | M65×2 | 65 | 62 | 60 | 125 | 4 | 18 | 83 | 75 | 30 | 40 | 16 | 8 | 8 | 18 | 61 | 61 |  
                                                | 80 | 65m6 | M75×2 | 75 | 72 | 70 | 139 | 4 | 18 | 98 | 90 | 32 | 50 | 18 | 10 | 10 | 58 | 69 | 70 |  | 
                                          
                                            |  | 
                                          
                                            | XD型單支點機架主要參數及尺寸(公稱直徑400,500,700)  | 
                                          
                                            |  | 
                                          
                                            | 
                                              
                                                | 機架型號
 | 機架公稱
 直徑
 | 傳動軸軸徑d
 | 傳動軸上端軸徑d1
 | 減速機輸出軸
 徑d0
 | 輸入端接
 口
 | 輸出端接口  | 外形及其它尺寸  | 軸承型號  | 重量(kg)  |  
                                                | D4H9
 | D5 | D6 | n2-d | f2 | A型  | B型  | H3 | H4 | H5 | D7 | A型  | B型  |  
                                                | H | H1 | H2 | H | H1 | H2 |  
                                                | XD4 | 400 | 90 | 75 | 55 | 見表
 | 415 | 515 | 565 | 16-26 | 6 | 890 | 310 | 691 | 1115 | 420 | 806 | 25 | 35 | 100 | 310 | 46222 | 251 | 256 |  
                                                | 65 |  
                                                | 70 |  
                                                | 100 | 85 | 65 | 691 | 806 | 46222 | 256 | 270 |  
                                                | 70 |  
                                                | 80 |  
                                                | XD5 | 500 | 100 | 85 | 65 | 520 | 620 | 670 | 20-26 | 6 | 1075 | 369 | 821 | 1325 | 494 | 946 | 30 | 40 | 140 | 335 | 46224 | 409 | 435 |  
                                                | 70 |  
                                                | 80 |  
                                                | 110 | 90 | 70 | 821 | 946 | 46224 | 405 | 431 |  
                                                | 80 |  
                                                | 90 |  
                                                | 120 | 100 | 90 | 829 | 954 | 46228 | 401 | 427 |  
                                                | 95 |  
                                                | 100 |  
                                                | 130 | 110 | 95 | 829 | 954 | 46228 | 395 | 421 |  
                                                | 100 |  
                                                | 110 |  
                                                | XD6 | 700 | 120 | 100 | 90 | 670 | 780 | 830 | 28-26 | 6 | 1185 | 399 | 909 | 1415 | 514 | 1024 | 35 | 45 | 100 | 400 | 46228 | 729 | 766 |  
                                                | 95 |  
                                                | 100 |  
                                                | 130 | 110 | 95 | 909 | 1024 | 46228 | 721 | 758 |  
                                                | 100 |  
                                                | 110 |  
                                                | 140 | 120 | 100 | 927 | 1042 | 46232 | 729 | 766 |  
                                                | 110 |  
                                                | 120 |  
                                                | 160 | 140 | 120 | 943 | 1058 | 46234 | 697 | 734 |  
                                                | 130 |  
                                                | 140 |  
                                                | XD7 | 900 | 140 | 120 | 100 | 940 | 1070 | 1124 | 40-30 | 6.4 | 1320 | 440 | 1021 | 1560 | 570 | 1141 | 40 | 50 | 140 | 520 | 46232 | 985 | 874 |  
                                                | 110 |  
                                                | 120 |  
                                                | 160 | 140 | 120 | 1037 | 1157 | 46234 | 1000 | 889 |  
                                                | 130 |  
                                                | 140 |  
                                                | 180 | 160 | 140 | 1050 | 1170 | 46240 | 1010 | 899 |  
                                                | 150 |  
                                                | 160 |  
                                                | 200 | 180 | 160 | 1070 | 1190 | 46244 | 1032 | 921 |  
                                                | 170 |  
                                                | 180 |  | 
                                          
                                            |  | 
                                          
                                            | 
                                              
                                                | 機架型號
 | 機架公稱
 直徑
 | 傳動軸軸徑d
 | 傳動軸上端軸徑d1
 | 傳動軸端尺寸  |  
                                                | M0 | d2(h9) | d3 | d4 | h1 | h2 | h3 | h4 | L1 | L0 | L2 | b1 | b0 | b2 | t1 | t0 | t2 |  
                                                | XD4 | 400 | 90 | 75m6 | M85×2 | 85 | 82 | 80 | 162 | 4 | 18 | 108 | 100 | 32 | 50 | 20 | 10 | 10 | 67.5 | 79 | 80 |  
                                                | 100 | 85m6 | M95×2 | 95 | 92 | 90 | 166 | 4 | 22 | 118 | 110 | 38 | 50 | 22 | 12 | 12 | 76 | 89 | 90 |  
                                                | XD5 | 500 | 100 | 85m6 | M95×2 | 95 | 92 | 90 | 166 | 4 | 22 | 118 | 110 | 38 | 50 | 22 | 12 | 12 | 76 | 89 | 90 |  
                                                | 110 | 90m6 | M100×2 | 100 | 97 | 95 | 166 | 4 | 22 | 118 | 110 | 38 | 50 | 25 | 12 | 12 | 81 | 94 | 95 |  
                                                | 120 | 100m6 | M110×2 | 110 | 107 | 105 | 177 | 4 | 22 | 128 | 120 | 40 | 60 | 28 | 14 | 14 | 60 | 104 | 104.5 |  
                                                | 130 | 110m6 | M120×2 | 120 | 117 | 115 | 177 | 4 | 26 | 138 | 130 | 44 | 70 | 28 | 14 | 14 | 100 | 114 | 114.5 |  
                                                | XD6 | 700 | 120 | 100m6 | M110×2 | 110 | 107 | 105 | 177 | 4 | 22 | 128 | 120 | 40 | 60 | 28 | 14 | 14 | 90 | 104 | 104.5 |  
                                                | 130 | 110m6 | M120×2 | 120 | 117 | 115 | 177 | 4 | 26 | 138 | 130 | 44 | 70 | 28 | 14 | 14 | 100 | 114 | 114.5 |  
                                                | 140 | 120m6 | M130×2 | 130 | 127 | 125 | 197 | 4 | 26 | 153 | 145 | 44 | 70 | 32 | 14 | 14 | 109 | 122 | 124.5 |  
                                                | 160 | 140m6 | M150×2 | 150 | 147 | 145 | 207 | 4 | 30 | 168 | 160 | 50 | 70 | 39 | 16 | 16 | 128 | 142 | 144 |  
                                                | XD7 | 900 | 140 | 120m6 | M130×2 | 130 | 127 | 125 | 197 | 4 | 26 | 153 | 145 | 44 | 70 | 32 | 14 | 14 | 109 | 122 | 124.5 |  
                                                | 160 | 140m6 | M150×2 | 150 | 147 | 145 | 207 | 4 | 30 | 168 | 160 | 50 | 70 | 36 | 16 | 16 | 128 | 142 | 144 |  
                                                | 180 | 160m6 | M170×3 | 170 | 166 | 165 | 227 | 4 | 32 | 198 | 190 | 52 | 80 | 40 | 16 | 16 | 157 | 162 | 164 |  
                                                | 200 | 180m6 | M190×3 | 190 | 186 | 185 | 242 | 4 | 32 | 238 | 230 | 54 | 90 | 45 | 18 | 18 | 175 | 180 | 182 |  | 
                                          
                                            |  | 
                                          
                                            | 
                                              
                                                | XD、XS型機架輸入端接口尺寸減速機輸出軸徑d0
 | 減速機類別代號  | D1 | D2 | D3 | n1-M | f1 |  
                                                | 12 | Z | 65 | 100 | 120 | 4-M6 | 3 |  
                                                | 14 | Z | 85 | 120 | 140 | 4-M8 | 3 |  
                                                | 18 | Z | 100 | 134 | 160 | 4-M8 | 4 |  
                                                | 25 | Z | 130 | 160 | 180 | 6-M8 | 4 |  
                                                | C | 170 | 200 | 230 | 6-M10 | 3 |  
                                                | 30 | C | 200 | 230 | 260 | 6-M12 | 4 |  
                                                | 35 | Z | 170 | 200 | 230 | 6-M10 | 5 |  
                                                | C | 230 | 260 | 290 | 6-M12 | 4 |  
                                                | 40 | Z | 170 | 200 | 230 | 6-M10 | 5 |  
                                                | C | 230 | 260 | 290 | 6-M12 | 4 |  
                                                | 45 | Z | 200 | 230 | 260 | 6-M10 | 5 |  
                                                | C | 230 | 260 | 290 | 6-M12 | 4 |  
                                                | 50 | Z | 200 | 230 | 260 | 6-M10 | 5 |  
                                                | C | 270 | 305 | 340 | 8-M16 | 5 |  
                                                | 55 | Z | 270 | 310 | 340 | 6-M10 | 5 |  
                                                | C | 270 | 305 | 340 | 8-M16 | 5 |  
                                                | 60 | C | 320 | 360 | 400 | 8-M16 | 5 |  
                                                | 65 | Z | 316 | 360 | 400 | 8-M12 | 6 |  
                                                | Z1 | 270 | 310 | 340 | 6-M10 | 5 |  | 
                                          
                                            |  | 
                                          
                                            | 
                                              
                                                | 減速機輸出軸徑d0 | 減速機類別代號  | D1 | D2 | D3 | n1-M | f1 |  
                                                | 60 | C | 320 | 360 | 400 | 8-M16 | 5 |  
                                                | 70 | Z | 316 | 360 | 400 | 8-M16 | 6 |  
                                                | C | 320316
 | 360 | 400 | 8-M16 | 5 |  
                                                | 80 | Z | 345 | 390 | 430 | 8-M16 | 6 |  
                                                | Z1 | 316 | 360 | 400 | 8-M12 | 6 |  
                                                | C | 360 | 410 | 460 | 8-M20 | 6 |  
                                                | 90 | Z | 400 | 450 | 490 | 12-M16 | 8 |  
                                                | C | 360 | 410 | 460 | 8-M20 | 6 |  
                                                | 95 | Z | 400 | 450 | 490 | 12-M16 | 8 |  
                                                | Z1 | 455 | 520 | 580 | 12-M20 | 10 |  
                                                | 100 | Z | 455 | 520 | 580 | 12-M20 | 10 |  
                                                | C | 470 | 520 | 580 | 12-M20 | 6 |  
                                                | 110 | Z | 520 | 590 | 650 | 12-M20 | 12 |  
                                                | C | 470 | 520 | 580 | 12-M20 | 6 |  
                                                | 120 | Z | 520 | 590 | 650 | 12-M20 | 12 |  
                                                | C | 550 | 600 | 660 | 12-M20 | 6 |  
                                                | 130 | Z | 680 | 800 | 880 | 12-M30 | 12 |  
                                                | C | 680 | 800 | 880 | 12-M30 | 8 |  
                                                | 140 | Z | 680 | 800 | 880 | 12-M30 | 12 |  
                                                | 180 | Z | 900 | 1020 | 1160 | 12-M36 | 12 |  | 
                                          
                                            |  |